工程量计算概述
工程量的概念及计算的依据
1)工程量是指按建筑工程量计算规则,以自然计量单位或物理计量单位所表示各分部分项或结构、构件的实物数量。
物理计量单位是指以物体(分项工程或构件)的物理法定计量单位来表示工程的数量。如混凝土梁、柱、板以立方米为计量单位,楼梯的栏杆、扶手以米为计量单位等。
自然计量单位是以物体自身的计量单位来表示的工程数量。如卫生器具安装以套为计量单位。
(2)建筑装饰工程的施工图纸、相应的标准图集、相应建筑工程量计算规则,是准确计算工程量的依据。
工程量计算的顺序
计算工程量时,为避免出现重复计算或漏算,必须按照一定的顺序进行。
分部分项工程之间工程量的计算顺序一般有以下三种方法:
(1)规范顺序法。即完全按照《预算定额》中分部分项工程的编排顺序进行工程量的计算。
其主要有点是能依据《装饰装修工程预算定额》的项目划分顺序逐项计算,通过工程项目与定额之间的对照,能清楚的反映出已算和未算项目,防止漏项,并有利于工程量的整理与报价,此法较适合初学者。
(2)施工顺序法。即根据工程项目的施工工艺特点,按其施工的先后顺序,同时考虑到计算的方便,由基层到面层或从下至上逐层计算。此法打破了定额分章的界限,计算工作流畅,但对使用者的专业技能要求较高。
(3)统筹原理计算法。即通过对《预算定额》的项目划分和工程量计算规则进行分析,找出各建筑、装饰分项项目之间的内在联系,运用统筹原理,合理安排计算顺序,从而达到以点带面、简化计算、节省时间的目的。此法通过统筹安排,是个分项项目的计算结果互相关联,并将后面要重复使用的基数先
实际工作中,往往综合应用上述三种方法。在建筑工程分部工程量计算时其参考顺序可排列为:
门窗构件统计
混凝土及钢筋混凝土工程
砌筑工程
土石方工程
金属结构工程
构件运输及安装工程
屋面工程
防腐保温隔热工程
在装饰工程分部工程量计算时其参考顺序可排列为:
门窗构件统计
楼地面工程
顶棚工程
油漆、涂料、裱糊工程
其他装饰
工程量计算的注意事项
(1)计量单位一致。按施工图纸计算工程量时,各分项工程量的计量单位,必须与《预算定额》中相应项目的计量单位一致,不能随意改变。例如:钢筋的工程量单位是“吨”,则计算出钢筋的长度以后还要换算成吨。
(2)计算规则一致。在计算工程量时,必须严格执行本地区现行《预算定额》中所规定的工程量计算规则,避免造成工程量计算中的误差,从而影响准确性。
(3)计算精确度一致。在计算工程量时,计算式要明了,数据要清晰,计算的精确度一致。工程量的数据一般精确到小数点后两位,钢筋、木材及使用的贵重材料的项目可精确到小数点后三位。
(4)计算要准确,不重算、漏算。在计算工程量时,要根据工程施工图纸,严格执行本地区现行《预算定额》中所规定的工程量计算规则进行计算;另外,为了保证不重算、漏算,计算时应按一定顺序进行。
基数的计算——三线一面
基数的概念:基数就是在一般土建工程各分项工程量计算中反复使用的最基本的数据。
基数的内容:基数的主要内容是“三线一面”。
三线:是指建筑设计平面图上所示的外墙外边线、外墙中心线、内墙净长线;
一面:是指建筑设计平面图上所示的底层建筑面积。
1.外墙外边线:是指建筑平面图外墙外围周长尺寸之和;
外墙外边线总长度(L外)=建筑平面图的外围周长尺寸之和
外墙外边线是计算勒脚、腰线、外墙抹灰、散水等分项工程量经常甚至是必须使用的数据。
2.外墙中心线:是表示外墙实际长度的外墙厚度中点的连线,它等于外墙外边线总长度减4倍的墙厚。
外墙中心线(L中) =外墙外边线总长度-(墙厚×4)
外墙中心线与外墙基础挖土、外墙基础垫层、外墙基础砌筑、外墙地圈梁、外墙砌体等分项工程量有密切的联系。
3.内墙净长线:是指内墙与外墙(或内墙)交点之间的连线,表示内墙的实际长度。它等于建筑平面图所示所有内墙净长度之和。
内墙净长线(L内)=建筑平面图所示所有内墙净长度之和
内墙净长线与内墙基础防潮、内墙基础及内墙砌筑、内墙抹灰等分项工程量的计算有密切联系。
4.底层建筑面积:建筑物底层勒脚以上外墙外围水平投影面积。
底层建筑面积(S底)=建筑物底层勒脚以上外墙外围水平投影面积
底层建筑面积与平整场地、地面、天棚、屋面等分项工程量的计算有着密切关系。
02
建筑面积
建筑面积的概念
建筑面积亦称建筑展开面积,是建筑物各层面积的总和。
建筑面积包括使用面积、辅助面积和结构面积三部分。
1.使用面积
使用面积是指建筑物各层平面中直接为生产或生活使用的净面积之和。
2.辅助面积
辅助面积是指建筑物各层平面中为辅助生产或辅助生活所占净面积之和。使用面积与辅助面积之和称有效面积。
3.结构面积
结构面积是指建筑物各层平面中的墙、柱等结构所占面积之和。
建筑面积的作用
1.重要管理指标
2.重要技术指标
3.重要经济指标
每平方米工程造价=工程造价/建筑面积(元/㎡)
每平方米人工消耗=单位工程用工量/建筑面积(工日/㎡)
每平方米材料消耗=单位工程某材料用量/建筑面积(㎏/㎡、m3/㎡等)
每平方米机械台班消耗=单位工程某机械台班用量/建筑面积(台班/㎡)
每平方米工程量=单位工程某工程量/建筑面积(㎡/㎡、m/㎡等)
4 .重要计算依据
建筑面积计算规则
中华人民共和国建设部颁发了《建筑工程建筑面积计算规范》 (GB/T50353-2005) ,规定了建筑面积的计算方法。
《建筑工程建筑面积计算规范》主要规定了三个方面的内容:① 计算全部建筑面积的范围和规定;
② 计算部分建筑面积的范围和规定;
③ 不计算建筑面积的范围和规定。
l )尽可能准确地反映建筑物各组成部分的价值量。例如,有永久性顶盖,设有围护结构的走廊,按其结构底板水平面积的1 / 2 计算建筑面积;有围护结构的走廊(增加了围维结构的工料消耗)则计算全部建筑面积。又如,多层建筑坡屋顶内和场馆看台下,当设计加以利用时,净高超过2.10m的部位应计算建筑面积;净高在1.20 m至2.10m的部位应计算1 / 2 面积;净高不足l.20m时不应计算面积。
2 )通过建筑面积计算的规定,简化了建筑面积的计算过程。例如,附墙柱、垛等不应计算建筑面积。
(一) 应计算建筑面积的范围
1.单层建筑物
单层建筑物的建筑面积,应按其外墙勒脚以上结构外围水平面积计算,并应符合下列规定:
l )单层建筑物高度在2 . 20m及其以上者应计算全面积;高度不足2 . 20m者应计算1 / 2 面积。
2 )利用坡屋顶内空间时,净高超过2 . 10m的部位应计算全面积;净高在1 .20m至2.10m的部位应计算1 / 2 面积;净高不足1 . 20m的部位不应计算面积。
S=a×b(外墙外边尺寸,不含勒脚厚度)


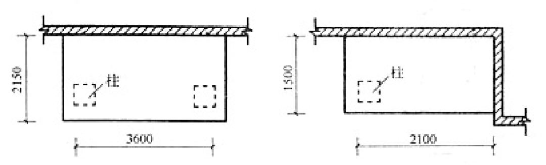
2 .单层建筑物内设有局部楼层
单层建筑物内设有局部楼层者,局部楼层的二层及以上楼层,有围护结构的应按其围护结构外围水平面积计算,无围护结构的应按其底板水平面积计算。层高在2.20m 及其以上者应计算全面积;层高不足2 . 20m 者应计算1 / 2 面积。

[例1]根据图3计算该建筑物的建筑面积(墙厚均为240mm)。
解:
底层建筑面积=( 6 . 0 + 4 . 0 + 0 . 24 ) × ( 3 . 30 + 2 . 70 + 0 . 24 ) = 10 . 24 × 6 . 24 =63 . 90 ㎡
楼隔层建筑面积=(4 . 0 + 0 . 24 ) × ( 3 . 30 + 0 . 24 ) = 4 . 24 × 3 . 54 = 15 . 01 ㎡
全部建筑面积=63 . 90 +15 .01 = 78 . 91 ㎡
3.多层建筑物
1 )多层建筑物首层应按其外墙勒脚以上结构外围水平面积计算;二层及以上楼层应按其外墙结构外围水平面积计算。层高在2 . 20m 及以上者应计算全面积;层高不足2 . 20 m 者应计算1 / 2 面积。
2 )多层建筑坡屋顶内和场馆看台下,当设计加以利用时,净高超过2 . 10m 的部位应计算全面积;净高在1 . 20m 至2 . 10m 的部位应计算1 / 2 面积;当设计不利用或室内净高不足1 . 20 m 时不应计算面积。

4.地下室、半地下室
地下室、半地下室(车间、商店、车站、车库、仓库等),包括相应的有永久性顶盖的出入口,应按其外墙上口(不包括采光井、外墙防潮层及其保护墙)外边线所围水平面积计算。层高在2 . 20m 及以上者应计算全面积;层高不足2 . 20m 者应计算1 / 2 面积。

5.建筑物吊脚架空层、深基础架空层
坡地的建筑物吊脚架空层、深基础架空层,设计加以利用并有围护结构的,层高在2 .20m 及以上的部位应计算全面积;层高不足2 . 20 m 的部位应计算l / 2 面积;设计加以利用的无围护结构的建筑吊脚架空层,应按其利用部位水平面积的l / 2 计算;设计不利用的深基础架空层、坡地吊脚架空层不应计算面积。

6 .建筑物内门厅、大厅
建筑物的门厅、大厅按一层计算建筑面积。门厅、大厅内没有回廊时,应按其结构底板水平面积计算。层高在2.20m及以上者应计算全面积;层高不足2.20m者应计算l / 2 面积。

7 .架空走廊
建筑物间有围护结构的架空走廊,应按其围护结构外围水平面积计算。层高在2.20m及以上者应计算全面积;层高不足2.20m者应计算1 / 2 面积。有永久性顶盖无围护结构的应按其结构底板水平面积的1 / 2 计算。

8.立体书库、立体仓库、立体车库
立体书库、立体仓库、立体车库,无结构层的应按一层一层计算;有结构层的应按其结构层面积分别计算。层高在2.20m及以上者应计算全面积:层高不足2.20m者应计算1/2面积。

底层建筑面积=(2.82+4.62)×(2.82+9.12)+3.0×1.20
=7.44×11.94+3.60
=88.83+3.60
=92.43㎡
结构层建筑面积=(4.62+2.82+9.12)×2.82×1/2(层高2m)
=16.56×2.82×0.50
=23.35㎡
小计:
92.43+23.35=115.78㎡
9.舞台灯光控制室
有围护结构的舞台灯光控制室,应按其围护结构外围水平面积计算。层高在2.20m及以上者应计算全面积;层高不足2 . 20 m 者应计算1 / 2 面积。
10.落地橱窗、门斗、挑廊、走廊、檐廊
建筑物外有围护结构的落地橱窗、门斗、挑廊、走廊、檐廊,应按其围护结构外围水平面积计算。层高在2.20m及以上者应计算全面积;层高不足2.20m者应计算l / 2 面积。有永久性顶盖无围护结构的应按其结构底板水平面积的l / 2 计算。



11.场馆看台
有永久性顶盖无围护结构的场馆看台应按其顶盖水平投影面积的1 / 2 计算。

12 .建筑物顶部楼梯间、水箱间、电梯机房
建筑物顶部有围护结构的楼梯间、水箱间、电梯机房等,层高在2.20m及以上者应计算全面积;层高不足2.20m者应计算l / 2 面积。

13.不垂直于水平面而超出底板外沿的建筑物
设有围护结构不垂直于水平面而超出底板外沿的建筑物,应按其底板面的外围水平面积计算。层高在2.20m及以上者应计算全面积;层高不足2 . 20m 者应计算1 / 2 面积。

14.室内楼梯间、电梯井、垃圾道等
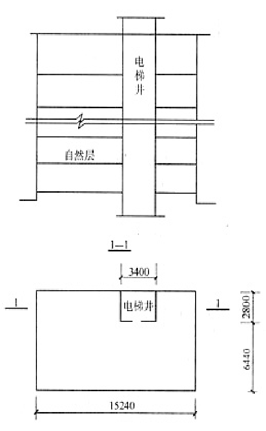
建筑物内的室内楼梯间、电梯井、观光电梯井、提物井、管道井、通风排气竖井、垃圾道、附墙烟囱应按建筑物的自然层计算面积。

[例2] 某建筑物共12 层,电梯井尺寸(含壁厚)如图 18
所示,求电梯井面积。

解:S = 2 . 80 × 3 . 40 ×12 层= 114 . 24 ㎡
15.雨篷
雨篷结构的外边线至外墙结构外边线的宽度超过2.10m者,应按雨篷结构板的水平投影面积的1 / 2 计算。


16.室外楼梯
有永久性顶盖的室外楼梯,应按建筑物自然层的水平投影面积的1 / 2 计算。

17.阳台
建筑物的阳台均应按其水平投影面积的l / 2 计算建筑面积。


18 .车棚、货棚、站台、加油站、收费站等
有永久性顶盖无围护结构的车棚、货棚、站台、加油站、收费站等,应按其顶盖水平投影面积的1 / 2 计算建筑面积。

S=2.0×5.50×1/2=5.50㎡
19.高低联跨建筑物
高低联跨的建筑物,应以高跨结构外边线为界分别计算建筑面积;其低跨内部联通时,其变形缝应计算在低跨面积内。

[例3]当建筑物长为l时,其建筑面积分别是多少?
解:
S高1=b1×l
S高2=b4×l
S低1=b2×l
S低1=(b3+b5)×l
20.以幕墙作为围护结构的建筑物
以幕墙作为围护结构的建筑物,应按幕墙外边线计算建筑面积。
21 .建筑物外墙外侧有保温隔热层
建筑物外墙外侧有保温隔热层的,应按保温隔热层外边线计算建筑面积。
22 .建筑物内的变形缝
建筑物内的变形缝,应按其自然层合并在建筑面积内计算。

(二)不计算建筑面积的范围
1.建筑物通道
建筑物的通道(骑楼、过街楼的底层),不应计算建筑面积。


2.设备管道夹层
建筑物内的设备管道夹层不应计算建筑面积。

3.建筑物内单层房间、舞台及天桥等
建筑物内分隔的单层房间,舞台及后台悬挂幕布、布景的天桥、挑台等不应计算建筑面积。
4.屋顶花架、露天游泳池等
屋顶水箱、花架、凉棚、露台、露天游泳池等不应计算建筑面积。
5.操作、上料平台等
建筑物内的操作平台、上料平台、安装箱和罐体的平台不应计算建筑面积。

6.勒脚、附墙柱、垛等
勒脚、附墙柱、垛、台阶、墙面抹灰、装饰面、镶贴块料面层、装饰性幕墙、空调机外机搁板(箱)、飘窗、构件、配件、宽度在2.10m以内的雨篷以及与建筑物内不相连的装饰性阳台、挑廊等不应计算建筑面积。


7 .无顶盖架空走廊和检修梯等
无永久性顶盖的架空走廊、室外楼梯和用于检修、消防等室外钢楼梯、爬梯不应计算建筑面积。

8 .自动扶梯等
自动扶梯、自动人行道不应计算建筑面积。
知识点:房屋建筑与装饰工程工程量计算
0人已收藏
0人已打赏
免费1人已点赞
分享
居住建筑设计
返回版块28.73 万条内容 · 420 人订阅
阅读下一篇
连续的材料与空间 - JR住宅? Ricardo Bassetti 建筑师在原有房屋的限制内融合了设计概念和业主需求,同时在结构调整上留出了一些自由的空间。这些调整让设计和空间更具灵活性,从而能够更好地满足业主的需要。
回帖成功
经验值 +10
全部回复(0 )
只看楼主 我来说两句抢沙发