砖混结构办公楼,地上二层、地下一层,首层拆除一道承重墙墙体,跨度5.18m,墙厚240mm,拆除后将警卫室和走廊形成一个大厅。
甲方要求:结合原结构图纸进行结构检测,提供加固设计图纸,并提供结构加固设计计算书,因为甲方就是建筑设计院,所以要求比较高,必须严格按照规范进行设计、施工。
先确定原则,先加固后拆除,方能保万无一失。

方案主要有两种,1、钢结构托换;2、钢筋混凝土结构托换。
甲方直接否掉第二种方案,钢筋混凝土结构托换湿作业大,施工周期长,最主要的还是拟托换的混凝土梁截面比较大,原结构层高3m,拟托换混凝土梁高度为500mm,按照混凝土结构托换的话,净层高为:3.1m-0.1m(板厚)-0.5m(梁高)-0.1m(地面做法)=2.4m,严重影响装修后的大厅效果,与甲方的初衷有些矛盾。
这样的话我们的问题也就来了,钢结构托换的加固设计计算是没有设计软件支持的,只能根据手算和以往经验确定最终细节。
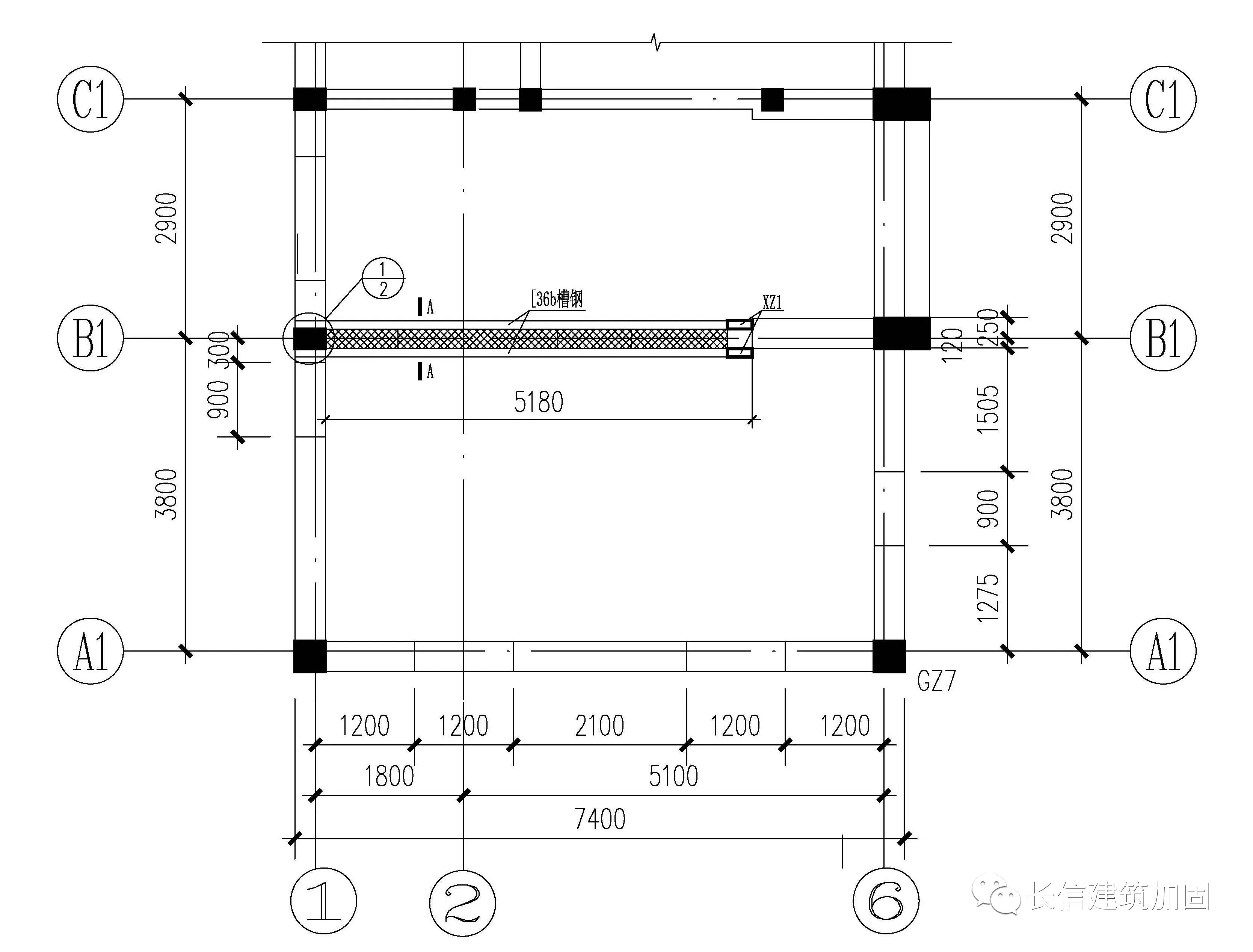
经过我们的设计师和院总工反复验算,才找出一个折中的方案。下图为承重墙拆除位置平面图,拆除此墙后1~6轴/A1~C1轴形成一个大厅。

这个是改造前的实际情况,左侧门进去是警卫室,右侧门进去是卫生间。拟拆除的枪就是这道墙。跨度5米。

这个是施工过程中的照片,槽钢选用的国标[36b。

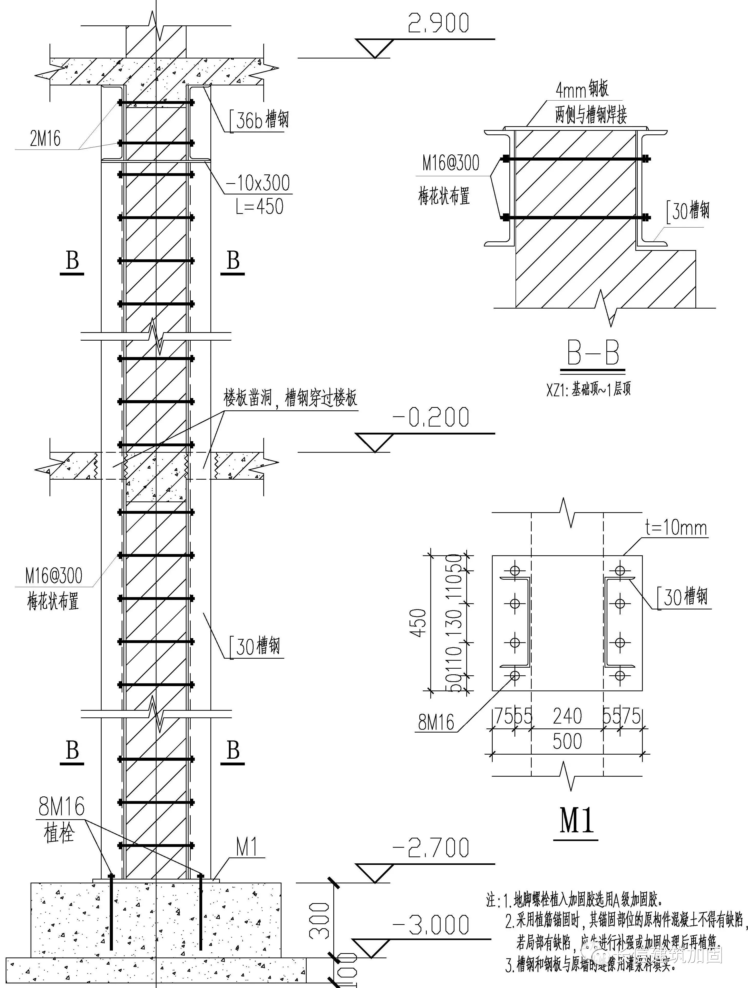
梁腹中间的销键的节点做法:这个销键原先是穿透螺栓来承担剪力的,为了安全起见,还是用了这个型钢和钢板组成的钢销键。

型钢组合梁钢销键设计节点图。

钢柱的做法,钢柱采用国标[30,直接做到地下室的原基础顶。销键采用螺栓直接传力。


型钢和钢板焊接封闭后,将砖墙和型钢组合柱内部灌注高强度无收缩灌浆料,待强度达到标准后,此组合柱和砖墙形成一个整体。

设计图纸和现场照片对比。

型钢组合梁的另外一端直接锚入墙体内部,并在组合梁和墙体交接的下侧做梁垫。

为了使得型钢组合梁和原结构混凝土板底接触紧密,除了砸入钢楔子,还应用液压千斤顶和脚手架进行加压顶升。

梁垫(型钢组合梁和原墙交接处支座)节点图。

设计图纸和现场照片对比。

将上述内容做完后,墙体的拆除也是有顺序 的,墙长共5.18米,1米作为一个单元的话,先拆第1、3、5单元,将型钢组合梁的下部钢板焊接完毕,并灌注灌浆料,等灌浆料强度达到设计强度后再拆除第2、4单元重复上述步骤,墙体拆除完成。

钢构件在焊接前刷防锈漆和防火涂料时,在焊接部位处留出50~100mm暂时不刷防锈漆;待焊接完成清理焊渣,焊缝检查合格后,补刷焊缝部位防锈漆和防火涂料。

型钢钢板表面涂刷防火涂料。

0人已收藏
0人已打赏
免费5人已点赞
分享
钢结构工程
返回版块46.51 万条内容 · 1197 人订阅
阅读下一篇
钢结构高强度螺栓连接副见证取样是如何规定的?名词解释 高强度螺栓连接副,是指由高强度螺栓、配套螺母及垫圈组成的紧固组件,广泛应用于各类钢结构工程中,以实现钢构件之间的可靠连接。其中,高强度螺栓以其卓越的抗拉、抗剪性能,确保了钢结构在承受荷载时的稳定性。 材料用途 高强度螺栓连接副主要用于各类钢结构工程的受力连接部位,如桥梁、高层建筑、大型机械设备等的主体结构连接。它们不仅提供了强大的连接力,还保证了钢结构在恶劣环境下的耐久性和安全性。
回帖成功
经验值 +10
全部回复(3 )
只看楼主 我来说两句-
加倍努力
沙发
2025-09-23 09:06:23
赞同0
-
攻城师东星
板凳
2025-09-15 10:36:15
赞同0
加载更多学习了钢结构托换拆除承重墙加固案例,多谢了。
回复 举报
不错的改造案例,而且特别详细
回复 举报