一、格构柱的组成 1、格构柱组成 图1 格构柱样图 肢件:受力件。 由2肢(工字钢或槽钢)、4肢(角钢)或3肢(圆管)组成。 图2 格构柱的截面型式 缀材:把肢件连成整体,并能承担剪力。 缀板:用钢板组成。 2、格构柱的结构特点 格构柱的结构特点是,将材料面积向距离惯性轴远的地方布置,能保证相同轴向抗力条件下增强构件抗弯性能,并且节省材料。 即在基坑两侧扩大端处,第一道混凝土支撑与第二、三道钢支撑长度较长,产生弯矩,导致支撑变形,故设置格构柱,用来提高支撑构件的抗弯性能,保证支撑结构的稳定。
一、格构柱的组成
1、格构柱组成

图1 格构柱样图
肢件:受力件。
由2肢(工字钢或槽钢)、4肢(角钢)或3肢(圆管)组成。

图2 格构柱的截面型式
缀材:把肢件连成整体,并能承担剪力。
缀板:用钢板组成。

2、格构柱的结构特点
格构柱的结构特点是,将材料面积向距离惯性轴远的地方布置,能保证相同轴向抗力条件下增强构件抗弯性能,并且节省材料。
即在基坑两侧扩大端处,第一道混凝土支撑与第二、三道钢支撑长度较长,产生弯矩,导致支撑变形,故设置格构柱,用来提高支撑构件的抗弯性能,保证支撑结构的稳定。
二、格构柱质量
1、格构柱高度
冠梁顶标高:1050.672m,
基坑底标高: 1031.852m,嵌入灌注桩3m,故:格构柱总高度:21.82m
2、肢件4L160×12(等边角钢)
单根截面积:(0.16×2-0.016)×0.016=0.004864 ㎡
单根体积:0.004864×21.82=0.10613248m?
单根重量:0.10613248×7.85×4=3.332吨


格构柱截面形式
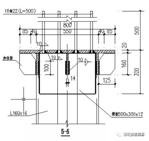
三、支撑与立柱节点
1、缀板:—500×300×12@600


第一道支撑与立柱节点图(1)

第一道支撑与立柱节点图(2)

第一道支撑与立柱节点图(3)
2、第一道撑与立柱节点


第二、三道支撑与立柱节点图
3、第二道撑与立柱节点




40C槽钢规格
4、第三道撑与立柱节点

钻孔灌注桩的计算



四、格构柱主要施工工艺及质量验收标准
1、施工工艺流程
临时格构柱基础钻孔桩成孔采用 SR220C 旋挖钻机。旋挖成孔首先是通过底部带有活门的桶式钻头回转,并直接将其装入钻斗内,然后再由钻机提升装置和伸缩钻杆将钻斗提出孔外卸土,这样循环往复,不断地取土卸土,直至钻至设计深度。对粘结性好的岩土层,可采用干式或清水钻进工艺,无需泥浆护壁。而对于松散易坍塌地层,或有地下水分布,孔壁不稳定,必须采用静态泥浆护壁钻进工艺,向孔内投入护壁泥浆进行护壁。施工工艺见下图:

本工程泥浆采用泥浆搅拌机制作,存放于泥浆箱内。用好泥浆是保障成孔顺利,保持桩孔不坍、不缩,保证混凝土灌注质量的重要环节。施工中配备专门技术人员根据地层特点管理好施工泥浆的质量。选用膨润土、CMC、PHP、纯碱等配制优质泥浆。根据地层情况及时调整泥浆性能,泥浆性能指标如下:

2、灌注桩钢筋笼制作
(1)钢筋笼采用整体制作整体吊装,桩身主筋采用 20 根 HRB400Φ25mm,桩长 15m,加劲箍筋采用 HRB400Φ20@2000,螺旋箍筋采用 HPB300φ10,加密区箍筋的间距 100mm,非加密区箍筋的间距为 200mm,混凝土保护层厚度为70mm。
(2)钢筋下料前按图计算下料长度,并考虑到焊接接头的位置,保证成型钢筋满足焊接要求。同一截面内的接头数量不应大于主筋总数的 50%,相邻接头应上下错开,钢筋接头错开 1000mm。
(3)制作时按图纸设计尺寸,放样制作主筋、箍筋,并标出主筋在加强箍筋圈上的位置,加强箍筋设在主筋内侧,焊接时使箍筋上任一主筋的标记对准主筋中部的加强箍筋标记,扶正箍筋,并校正加劲箍筋与主筋的垂直度,然后点焊牢固,主筋全部焊在加强箍筋上后,将骨架搁于支架上,按设计位置布置好螺旋箍筋,并焊接于主筋上。受力筋的连接接头应设置在内力较小处,并应错开布置。
钢筋笼底部 50cm 主筋稍向内侧弯曲成倾斜状。
(4)钢筋笼制作在专用台架上进行,钢筋的间距必须至少采用两个间距定位架来进行定位,禁止工人手扶固定间距,保证其主筋和箍筋的轴线、平顺度和间距符合设计要求规范误差要求。
(5)钢筋笼在搬运和吊装时,需做好保护措施避免钢筋笼变形。搬运采用吊车,吊点设两个,在吊装过程中要轻吊轻放。
五、格构柱施工要点
1.格构柱设计要求
格构柱截面形式为 550×550mm,角钢型号为∠160×16,缀板型号为 500×300×12@600 mm,钢构件连接均为满焊。其中格构柱嵌入基底以下 15m,即钻孔灌注桩长 15m,钢立柱嵌入钻孔灌注桩 3m。钢立柱与钻孔灌注桩主筋焊接,一起吊放,钻孔灌注桩桩径 1200mm,桩身垂直度偏差≤1/300 桩长。
2.格构柱制作技术要求
①格构柱采用在场外钢构加工制作,原材料进场首先审查质量合格证明文件并对材料的外观进行检查验收,合格后准予制作。对制作完成的格构柱依据《钢结构工程施工验收规范》GB50205-2001 及设计要求进行验收验收合格后方允许进场进行安装。
②格构柱间对接焊接时接头应错开,保证同一截面的角钢接头不超过 50%,相邻角钢错开位置不小于 50cm。角钢接头在焊缝位置角钢内侧采用同材料短角钢进行补强。
3、钢筋笼浇筑时易出现的问题
1)钢筋笼上浮
已经沉放到设计深度位置的钢筋骨架,在浇砼过程中,骨架位置比原设计位置高出,俗成“浮笼”。
原因分析
(1)钢筋笼骨架内径与导管间距小,粗骨料粒径太大, 主筋搭接焊头未焊平,在导管提升与下沉回来过程中,挂带钢筋笼。
(2)钢筋在安装过程中,骨架扭曲,箍筋变形、脱焊脱落或者导管倾斜,使得钢筋与导管外壁紧密接触。
(3)有时因机具故障,浇砼时停歇,导管与钢筋间砼已凝结,提升导管时将钢筋带出。
(4)浇砼速度过快,砼面升至钢筋笼底,产生向上“浮力”,导致钢筋笼浮上来。
处理办法
(1)刚开始浇砼就出现“浮笼”,主要是导管与笼之间有挂带现象;应立即中止浇砼,反复上下摇动导管或单向旋转。
(2)在浇砼过程中,随着导管拔出,笼上浮,但砼面不动,亦是因导管与笼间有挂带现象,应反复摇动导管,重复使之上下移动,以切断二者联系。
2)桩头冒水
在基坑垫层砼浇灌完毕,桩头部位出现渗水现象。
原因分析
(1)砼浇注不密实,桩身(尤其是桩头部位)有裂隙或夹泥,砼中石子粒径太大,级配不均匀。
(2)浇砼时,泥浆相对密度过大,砼与主筋之间有夹泥,地下水沿着夹泥冒出。
(3)在基坑开挖时,挖土机械碰撞桩身,造成桩头部位有裂隙。
(4)截桩时风镐等机械过度冲击桩头部砼,致使桩头砼产生裂缝而渗水。
处理办法
(1)如发现有桩头冒水现象,应检测桩身砼强度、桩身有无缺陷,对仅限于桩头一段长度范围内出现裂隙的,应凿除桩头砼,直至露出坚实砼后再灌高出原等级一个强度等级的砼。
(2)如桩身质量有严重缺陷,应请设计及检测中心核定是否须重新补桩。
六、施工现场照片

格构柱焊接

格构柱成品

角钢焊接接头

角钢焊接接头

格构柱吊装

格构柱吊装

格构柱止水板
注:止水板应在基坑开挖完成后焊接,焊接位置在底板中间。
